このページを印刷する
- 価格
-
3,780万円
- 間取
-
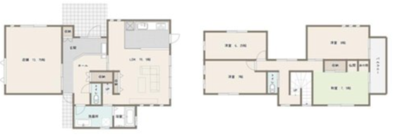
4LDK
| 所在地 | 兵庫県神戸市北区上津台3丁目 |
|---|---|
| 交通 |
|
| 築年月 | 2008年9月(築17年6ヶ月) | 新築/中古 | 中古 |
|---|---|---|---|
| 面積 | 145.74m²(44.08坪) | 計測方式 | |
| バルコニー | 向き | ||
| 建物階数 | 地上2階 | 所在階 | |
| 部屋番号/区画番号 | --- | 総戸数/総区画数 | --- |
| 建物構造 | 木造 | ||
| 間取内容 | |||
| 駐車場 | 取引態様 | 仲介 | |
| 引渡/入居時期 | 相談 | 現況 | 空家 |
| 地目 | 宅地 | 用途地域 | 第一種低層住居専 |
| 都市計画 | 市街化区域 | 地勢 | 平坦 |
| 土地面積 | 254.03m²(76.84坪) | 土地面積計測方式 | 公簿 |
| 建ぺい率 | 40% | 容積率 | 80% |
| 土地権利 | 所有権 | 接道状況 | |
| 周辺環境 | |||
| 設備・条件 |
|
||
| 物件カテゴリー | |||
| URL | https://suumo.jp/chukoikkodate/hyogo/sc_kobeshikita/nc_20491140/ | ||
| 自社物 | 自社物 | 状態 | 売出中 |
| 物件番号 | 8925 | ||
| 情報登録日 | 2026年3月24日 | 情報更新日 | 2026年3月24日 |
物件掲載内容と現況に相違がある場合は現況を優先といたします。









